Looking around at all the things Spring brings, you can see an abundance of blooming flowers, green grass, busy bees, and so much more going on. Northern Star’s new campus is also going in to full bloom! We have staff, board members, volunteers, past participants, and even children asking what needs to be done at the new campus. I wanted to share with everyone the plans that we have so far and will try my best to keep the website, Facebook, and InstaGram up to date with current opportunities and needs.
Northern Star would like to share the exciting news and first steps of making the vision of building a campus a reality!
The program has been searching for the ideal property for several years to be able to serve all our program participants in one safe, spacious, and convenient location. We are thrilled to announce the groundbreaking of our Northern Star Campus on April 15, 2023!
Plans are big, and we are reaching out to all our supporters, surrounding businesses, and organizations to get involved in becoming part of Northern Star’s mission. The campus, as outlined below, will be able to provide:
- Individual housing for up to 14 young adults, under 26 years of age
- Opportunities for learning, practicing, and mastering everyday life skills with concentrations in education, career, money management, physical and mental health, transportation, permanent housing, parenting, intrapersonal skills, and building a long-term support system
- A day center for public use that will include help with the above-mentioned life skills, community resource connections, hygiene, and clothing closet.
- Weekly Bible Study opportunities and Drug Free Accountability meetings
Northern Star is expanding to accommodate the growing number of young adults in at risk environment needing the transitional housing, life skills education, and support our independent living program can provide to aid in successful transition to adulthood.
If you would like to become a member of the campus committee, donate supplies, assist with labor, or monetary assistance for any of the Phase 1 projects, please contact Mandy Williams, northernstarga28@gmail.com, 770-364-9319. We are thankful for the generosity and support of our community and surrounding communities for coming together to help create this safe, educational, supportive environment for young people.
We have created a wish list for our local Dahlonega Home Depot. Items do not have to come from Home Depot, it was just the easiest way to have a central list. The campus address for delivery is 2076 Dawsonville Hwy, Dahlonega, GA 30533
https://www.homedepot.com/list/view/details/shared/06fc2010-b7df-11ed-865b-376a75dd0881
Monetary donations can be made via our website https://northernstarga.org/donate-now , mail, or Venmo.
We hope that you will be able to support our mission in one of theabove-mentioned ways! Please contact me with any questions or to volunteer.
Campus outline proposal
Phase 1: April – December 2023
- Property clean-up:
Removal of old barnwood and tin
Clean up trash – will need several dumpsters
Demo log house, 2 chicken houses, barn, and mobile home
Clean up fence – all property line fence will need to be secured and hooked to existing t-posts (the posts will need to be firmly driven into the ground), majority of interior fencing will need to be taken down and rolled up.
- Renovate existing brick house to include:
Kitchen appliances
Kitchen sink
Washing Machine and Electric Dryer
New countertops
Update kitchen cabinets
Take down 3 walls and adding header to create a large life skill & dining area
Sheetrock throughout
Painting throughout
Update minor electrical
Clean chimney
Patch and refinish hardwood flooring
Kitchen and dining room flooring
6” gutters
Add moisture barrier under house
Caulk and paint exterior windows
Add smoke and carbon dioxide detectors
Remove handicap shower and tile in added on room – will need flooring
Level/lift concrete porch and repair roof over porch
- Preparation for Quadplex building
Blueprints
2 – 1500 gallon septic tanks
Grading
Stubbed plumbing and concrete slab foundation
Concrete slab foundation
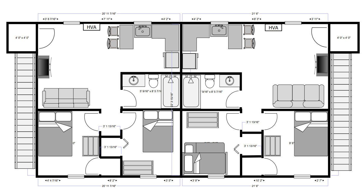
- Complete Quadplex building
2 story, 4-unit building will house up to 6 participants
Building supplies needed –
Lumber, metal roofing material, gutters, siding, electrical, plumbing fixtures, drywall, insulation, doors, windows, cabinets, flooring, kitchen appliances, washing machine & dryer
Skilled Labor needed –
Grading, Framing, Roofing, Electrical, Plumbing, Drywall, Painting, Flooring, Heat/AC mini split
Additional Volunteers- Join the Campus Committee and help with any of the following:
- Planning and organizing
- General labor, assistants, clean-up
- Community connections
- Project Management
First floor

Second Floor

